Logo CD Studio Tecnico

Impianto di Potabilizzazione – Progetto di Massima

Schema di processo, unità di trattamento e linea fanghi: dalla chiariflocculazione alla disinfezione finale

Vista generale impianto di potabilizzazione
Vista generale dell’impianto: articolazione delle unità e organizzazione funzionale del layout.
Schema a blocchi e piping impianto di potabilizzazione
Schema di processo e piping: linea acque, linea fanghi e principali apparecchiature.
Chiariflocculazione Accelator
Chiariflocculazione di tipo Accelator: coagulazione, flocculazione e sedimentazione accelerata.
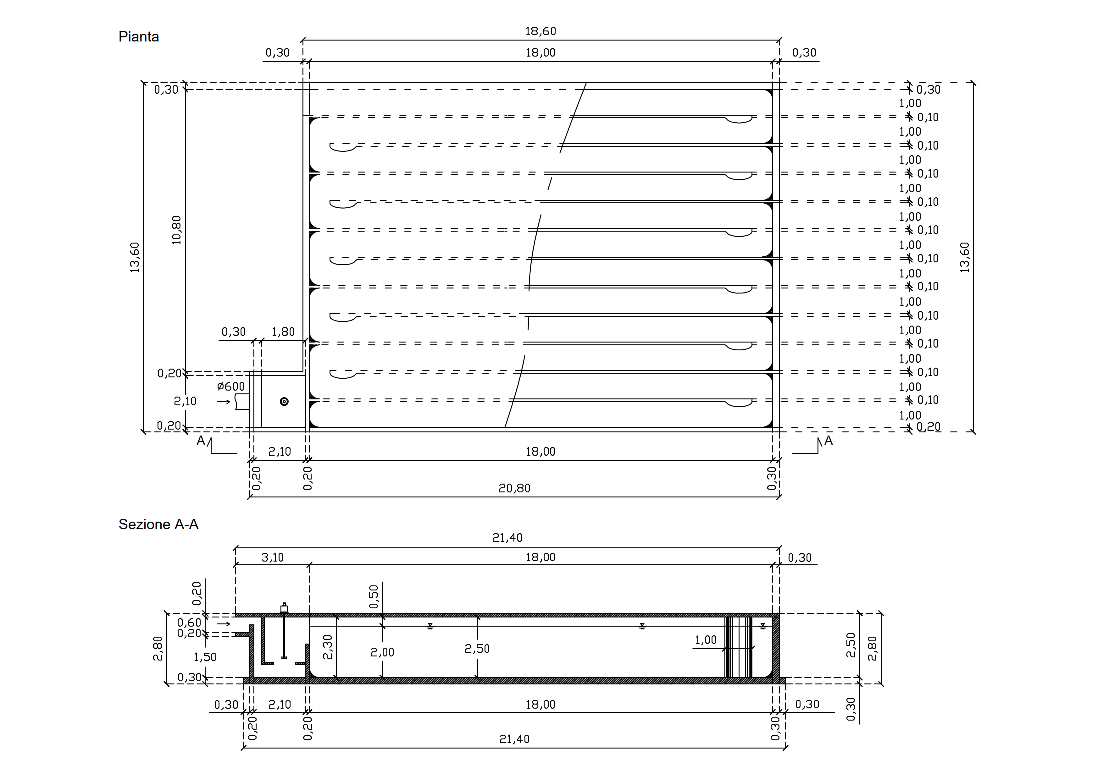
Filtri rapidi a rigenerazione continua della sabbia
Filtrazione rapida: filtri a gravità a rigenerazione continua della sabbia per l’affinamento finale.
Disinfezione finale per acqua potabile
Disinfezione finale: sicurezza igienico-sanitaria e garanzia dei requisiti di potabilità.
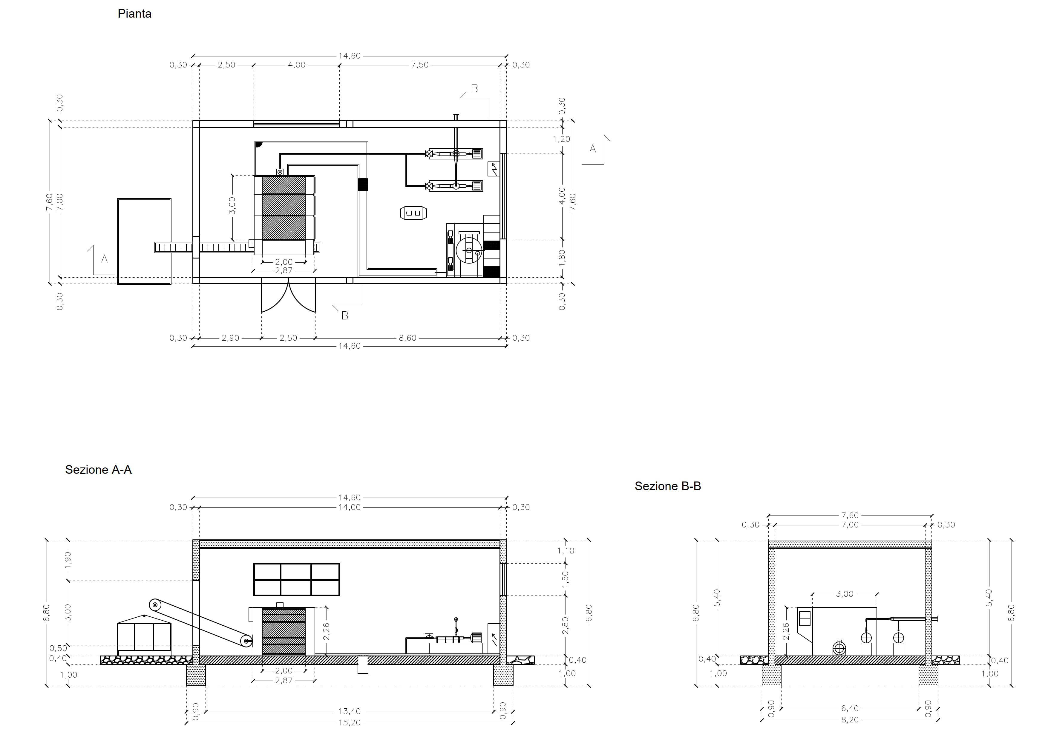
Linea fanghi: ispessitore dinamico e nastropressa
Linea fanghi: ispessimento dinamico.
Linea fanghi: nastropressa
Linea fanghi: disidratazione meccanica tramite nastropressa.

Dati Progetto

Descrizione Tecnica

Il progetto di massima riguarda un impianto di potabilizzazione finalizzato alla trasformazione di acqua grezza in acqua idonea al consumo umano, mediante una sequenza di trattamenti in grado di rimuovere torbidità, solidi sospesi, microinquinanti associati e carica microbiologica.

La linea acque è strutturata in una successione razionale di fasi: pretrattamenti e stabilizzazione del flusso, coagulazione e chiariflocculazione (unità di tipo Accelator) per la rimozione della frazione colloidale e dei solidi aggregati, quindi filtrazione rapida su sabbia a rigenerazione continua per l’affinamento finale. La catena si completa con la disinfezione, essenziale per garantire la sicurezza igienico-sanitaria prima della distribuzione.

In parallelo, la progettazione integra la linea fanghi, dedicata alla gestione dei residui prodotti dalle fasi di chiarificazione e filtrazione. È prevista una sezione di ispessimento dinamico seguita da disidratazione meccanica tramite nastropressa, così da ridurre i volumi, migliorare la maneggevolezza e ottimizzare le operazioni di smaltimento.

Il caso studio rappresenta un esempio di progettazione impiantistica integrata, in cui lo schema di processo, le scelte tecnologiche e l’organizzazione delle opere concorrono a garantire un trattamento affidabile, controllabile e coerente con gli obiettivi di qualità.

Download Progetto

Il pacchetto completo include elaborati tecnici e file Autocad di progetto.

Prezzo: € 800,00 (tasse incluse).
Dopo il pagamento e l’invio della contabile su WhatsApp, lo Studio invia il progetto completo in unico file ZIP compresso.

Vai alla pagina Pagamenti

Nota operativa: pagamenti con importo difforme o contabile incompleta possono ritardare l’abilitazione del download.

“Una potabilizzazione efficiente non è solo qualità dell’acqua in uscita, ma equilibrio tra processo, continuità di esercizio e gestione dei residui. È il risultato di scelte progettuali consapevoli, in cui ogni unità è dimensionata per lavorare con affidabilità e sicurezza, anche nelle condizioni operative più sfidanti.”

Ing. Dario Cucchiara
← Torna al Portfolio